Descrizione

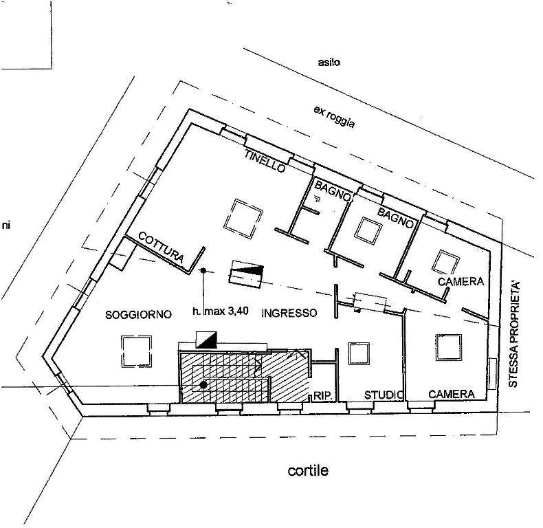
VERBANIA Intra, al terzo piano senza ascensore di caseggiato in zona centralissima, grande e soleggiata mansarda di circa 170 mq, con posto auto composta da soggiorno con angolo cottura, tre camere, due bagni, ripostiglio e posto auto interno scoperto. Caldaia a condensazione nuova, infissi in vetro camera; Libera da subito, solo a referenziati.


Caratteristiche principali

Life Style
Quiet
Stato Immobile
Buono
Grado
Medio
Posizione
Centro
Panorama
Vista Aperta
Orientamento
Est Sud Ovest
Lati Liberi
3
Giardino
Cortile
Arredi
Semi Arredato
Tipo Soggiorno
Doppio
Tipo Cucina
Angolo Cottura
Riscaldamento
Autonomo
Tipo Riscaldam.
Caldaia a Condensazione
Tipo Impianto
Radiatori
Fonte Energetica
Metano
Acqua Calda
Autonoma
Infissi
Legno Doppio Vetro
Serramenti
Buono
Pavim. Giorno
Laminato
Pavim. Notte
Laminato
Pavim. Cucina
Laminato
Pavim. Bagno
Ceramica
Cauzione
Tre Mesi
Canoni Anticipati
Un Mese
Tipo Contratto
4+4 Anni
Accesso Disabili
No
Accesso interno disabili
Pieno accesso
Tipo Registr.
Cedolare Secca
Isolamento
Presente
Isolamento termico
Isolamento tetto/sottotetto
Isolamento acustico
Nessuno
Destinato a residenti
Si
Accessori: Tripli Vetri

Mappa

corso lorenzo Cobianchi 35, Verbania (VB)

Cookie preference